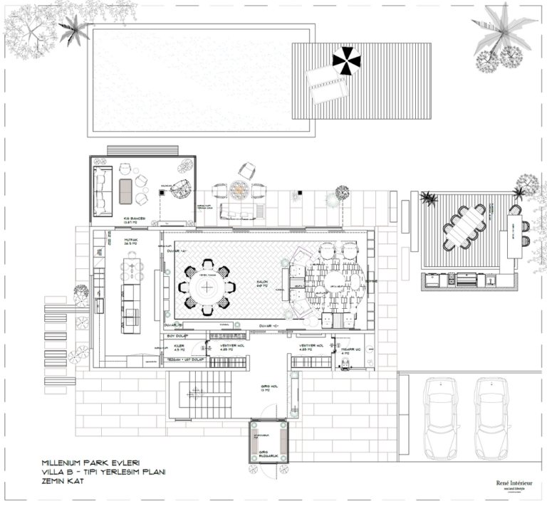
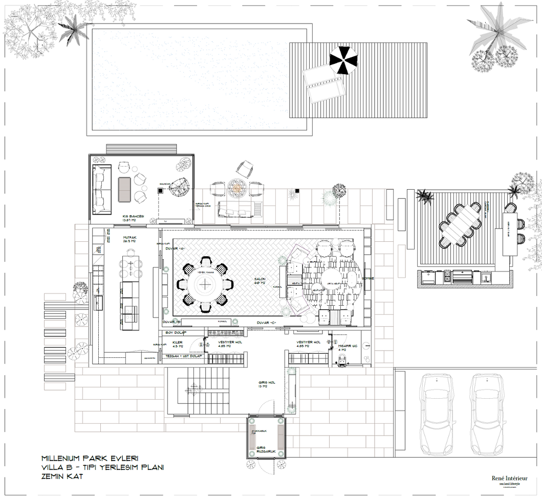
Millenium Park Villa Tasarımı
Bu projede, modern yaşamın konforunu estetik mimari anlayışıyla bir araya getiren özel bir villa tasarımı ele alınmıştır. Yapının tüm iç ve dış mekânları detaylı bir şekilde planlanmış, her alanın işlevselliği ve görsel bütünlüğü ön planda tutulmuştur. Proje sürecinde villanın her bölümü özenle tasarlanmış ve tüm detayları profesyonel şekilde fotoğraflanarak kayıt altına alınmıştır.
Villanın iç mekânlarında her oda kendine özgü bir tasarım diliyle hazırlanmıştır. Mekânların kullanım amacına göre farklı renk paletleri, malzemeler ve dekoratif detaylar tercih edilerek her odanın karakteri ayrı bir kimlik kazanmıştır. Bu yaklaşım sayesinde villa içerisinde hem bütünlük hem de çeşitlilik hissi oluşturulmuştur.
Modern mimari çizgiler, ferah yaşam alanları ve estetik detayların birleştiği bu proje; konforlu, şık ve fonksiyonel bir yaşam alanı sunmayı amaçlayan kapsamlı bir tasarım çalışmasıdır. İstersen sana bunun daha kısa (web sitesinde daha profesyonel duran) bir versiyonunu da hazırlayabilirim.
Salon Tasarımı
Salon tasarımında modern mimari çizgiler ve konfor ön planda tutulmuştur. Geniş ve ferah bir yaşam alanı oluşturmak için renk uyumu, aydınlatma ve dekoratif detaylar özenle planlanmıştır. Kullanılan malzemeler ve tasarım dili sayesinde hem şık hem de işlevsel bir yaşam alanı ortaya çıkarılmıştır.
Mutfak Tasarımı
Mutfak tasarımında modern çizgiler ve kullanım kolaylığı ön planda tutulmuştur. Depolama alanları, tezgâh düzeni ve aydınlatma detayları işlevselliği artıracak şekilde planlanmıştır. Estetik ve pratik kullanımın bir araya geldiği bu alan, günlük yaşam için konforlu ve düzenli bir mutfak ortamı sunmaktadır.
Villanın iç mekânlarında her oda kendine özgü bir tasarım diliyle hazırlanmıştır. Mekânların kullanım amacına göre farklı renk paletleri, malzemeler ve dekoratif detaylar tercih edilerek her odanın karakteri ayrı bir kimlik kazanmıştır. Bu yaklaşım sayesinde villa içerisinde hem bütünlük hem de çeşitlilik hissi oluşturulmuştur.
Modern mimari çizgiler, ferah yaşam alanları ve estetik detayların birleştiği bu proje; konforlu, şık ve fonksiyonel bir yaşam alanı sunmayı amaçlayan kapsamlı bir tasarım çalışmasıdır. İstersen sana bunun daha kısa (web sitesinde daha profesyonel duran) bir versiyonunu da hazırlayabilirim.
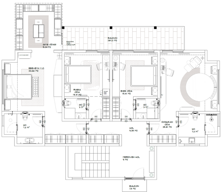
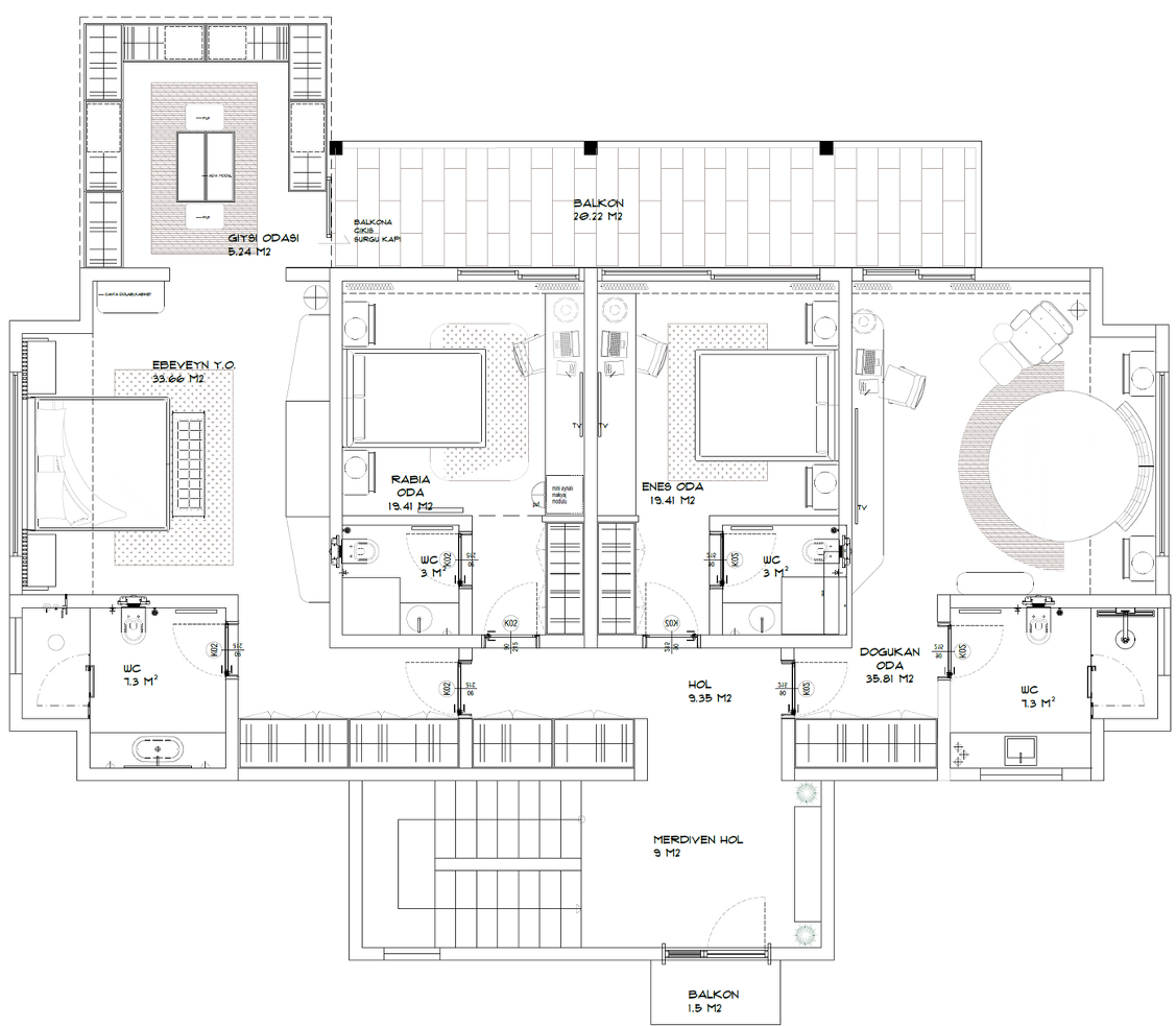
Üst Kat Hol Tasarımı
Üst kat hol tasarımında ferah bir geçiş alanı oluşturmak hedeflenmiştir. Doğal ışık, sade renkler ve dengeli dekoratif detaylar ile mekânın hem şık hem de kullanışlı olması sağlanmıştır. Üst kattaki odalara bağlanan bu alan, bütün tasarımın devamlılığını destekleyen estetik bir geçiş noktası sunmaktadır.
Genç Odası Tasarımı
Bu oda tasarımında sade ve modern bir yaşam alanı oluşturmak hedeflenmiştir. Mekânın ferahlığını koruyan renk seçimleri, dengeli mobilya yerleşimi ve aydınlatma detayları ile konforlu bir atmosfer sağlanmıştır. Estetik ve işlevselliğin bir araya geldiği bu alan, günlük kullanım için rahat ve düzenli bir ortam sunmaktadır.
Kız Çocuk Odası Tasarımı
Bu çocuk odası, pembe renk konseptiyle neşeli ve canlı bir atmosfer yaratacak şekilde tasarlanmıştır. Fonksiyonel mobilya yerleşimi, güvenli ve rahat kullanım alanları ile birlikte dekoratif detaylar, hem oyun hem de dinlenme için ideal bir ortam sunmaktadır. Renk uyumu ve tasarım dili, odanın enerjik ve sevimli karakterini ön plana çıkarmaktadır.
Erkek Çocuk Odası Tasarımı
Bu çocuk odası, mavi renk konseptiyle sakin ve huzurlu bir atmosfer yaratacak şekilde tasarlanmıştır. Fonksiyonel mobilya yerleşimi, oyun ve dinlenme alanları ile birlikte dekoratif detaylar, odanın hem eğlenceli hem de güvenli bir yaşam alanı olmasını sağlamaktadır. Renk uyumu ve tasarım dili, odanın karakterini enerjik ve modern bir şekilde yansıtmaktadır.
Ebeveyn Yatak Odası Tasarımı
Bu yatak odası, rahatlık ve şıklığı bir araya getiren modern bir tasarımla dizayn edilmiştir. Sade renk paleti, dengeli mobilya yerleşimi ve yumuşak aydınlatma detayları ile huzurlu ve dinlendirici bir atmosfer oluşturulmuştur. Fonksiyonellik ve estetiğin birleştiği bu alan, günlük yaşam için konforlu ve şık bir ebeveyn odası sunmaktadır.
Ebeveyn Giyinme Odası Tasarımı
Bu giyinme odası, düzen ve şıklığı ön planda tutan modern bir tasarımla tasarlanmıştır. Fonksiyonel dolap ve depolama alanları, aydınlatma ve dekoratif detaylarla desteklenerek hem kullanışlı hem de estetik bir ortam oluşturulmuştur. Mekân, günlük kullanımda rahatlık sağlarken, şık ve düzenli bir kişisel alan sunmaktadır.
Kış Bahçesi Tasarımı
Bu kış bahçesi, çevresi tamamen cam ile çevrilerek doğal ışığın maksimum şekilde içeri girmesi sağlanmıştır. Ferah ve aydınlık bir atmosfer yaratacak şekilde düzenlenen mekânda, rahat oturma alanları ve dekoratif detaylar ön planda tutulmuştur. Hem dinlenme hem de keyifli vakit geçirme alanı olarak tasarlanan bu bölüm, iç mekân ile dış mekân arasında estetik ve konforlu bir geçiş sunmaktadır.
























































